Unternehmen
Leistungen
Aktuelle Projekte
Referenzen
Engagement
Karriere
Seite wählen
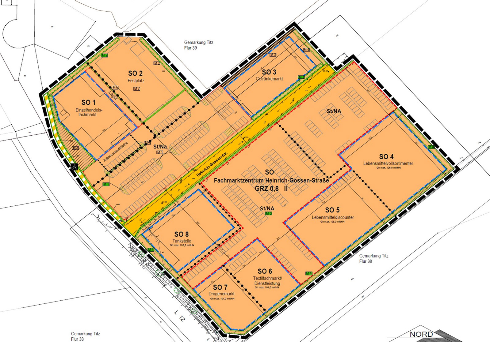
Titz – Heinrich-Gossen-Str. | Nahversorgungszentrum
Entwurfsplanung
Titz
Heinrich-Gossen-Str.
Objekttyp
Nahversorgungsmarkt
Betreiber
ALDI Süd, Edeka, Rossmann, Takko, Imbiss
Grundstücksgröße
19.500 m²
Nutzfläche
5.747 m²
Projektstatus
Baugenehmigungsverfahren